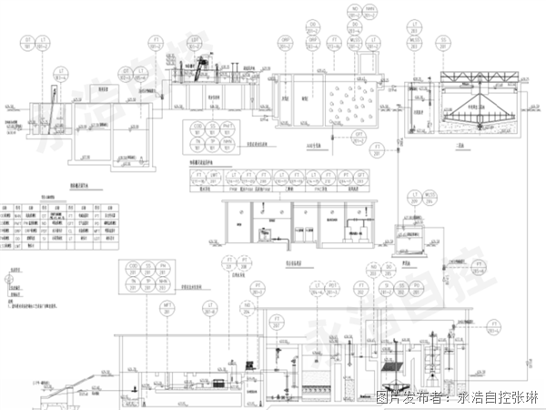
该项目为成都永浩自控承接的“都江堰某小型污水处理厂自控项目=”,污水厂处理规模0.5万m³/d-。生产工艺包括:预处理、调节池、生化池△、二沉池◁■△、深度处理单元及污泥处理。


采用高性能工业级控制主机与分布式子站模块组合架构△=,主控制站选用具备高可靠性◇、强抗干扰能力的PLC配置,搭配适配各工艺环节的现场控制单元,确保对预处理、生化池◆■、深度处理等全流程设备的精准控制。
现场操作终端采用高分辨率HMI工业触摸显示屏,中控室配置管理工程师站与操作员站,构建人机交互便捷、数据处理高效的硬件体系▽。
仪表检测系统选用Atoler高精度△、高稳定性的水质-▷、流量□□、液位监测设备,满足实时工艺参数采集与设备运行状态监控需求,为控制策略调整提供可靠数据支撑。
采用具备跨平台兼容性与模块化设计的组态软件,集成流程可视化•、实时报警、数据存储等功能,实现工艺过程动态展示与异常情况快速响应。
搭配功能强大的编程调试软件…▽,支持远程程序下载、固件升级及设备维护,提升系统可维护性与功能扩展性▽-◇,满足不同工况下的控制逻辑优化需求□▲。

构建 ★●●“中央监控系统 - 现场控制站 - 设备控制单元” 三级控制网络,通过高速工业以太网实现数据交互。中央监控系统统筹全局工艺参数与设备状态△◁,现场控制站按工艺单元(预处理、生化处理、污泥处理等)分区部署◆□□,各控制单元独立完成本地逻辑控制,同时通过网络与中央系统实时同步数据,形成 ★■•“集中管理◁、分散控制◁” 的高效模式◆◆。

预处理环节:基于液位、流量检测数据○☆,自动调节格栅机、提升泵运行参数,实现进水负荷均衡控制…•★;除臭系统与预处理设备联动,根据探测浓度自动启停处理装置,保障厂区环境安全=●☆。
生化处理核心环节:通过在线水质仪表(PH、MLSS-、溶解氧等)实时监测数据,动态调整曝气系统、回流比及药剂投加量=▪,确保生化反应效率最优化;深度处理单元与生化池联动控制,根据出水指标自动调节滤池运行周期与消毒剂量,保障出水水质稳定达标。
生化处理核心环节:通过在线水质仪表(PH、MLSS、溶解氧等)实时监测数据,动态调整曝气系统、回流比及药剂投加量•,确保生化反应效率最优化…;深度处理单元与生化池联动控制,根据出水指标自动调节滤池运行周期与消毒剂量,保障出水水质稳定达标。
建立全流程设备工况与工艺参数实时监测体系=●▽,通过趋势分析、阈值预警等功能提前识别设备异常(如水泵空转▼-、风机过载、仪表故障等),并自动触发报警与应急处理程序,减少人工巡检压力●,降低非计划停机风险。
集成能源管理模块▪,对全厂用电••=、用水数据进行分类计量与分析,生成能耗报表与节能优化建议▽★,为后续工艺节能改造提供数据依据。
视频监控系统可以实现全厂生产区域设备的监控及厂区安防◁,便于中控室值班人员及时发现现场问题,排除故障以及对警情的及时处理,保证生产的正常进行••▪。厂区视频监控系统采用全数字化网络监控系统。
周界设置昼夜型高清红外网络枪机,围墙顶端安装电子围栏,入侵报警主机采用总线型报警主机,形成全方位的安全防范系统,保障水厂生产安全。
围墙装设脉冲式电子围栏防入侵★=☆,报警主机采用总线型报警主机,形成全方位的安全防范系统▲▲▷,保障水厂生产安全。
低维护成本:硬件采用工业级耐用器件■△,软件具备自诊断与远程维护功能,减少现场维护频次;分布式控制架构支持局部设备检修时不影响整体系统运行■☆,降低运维人力与时间成本□。
高效协同运行:全流程自动化控制避免人工干预误差,工艺参数实时优化确保设备始终运行在最佳工况,相比传统手动控制模式可提升处理效率 15%-20%,减少药剂消耗 10%-15%,降低能耗 8%-12%。
兼容性与扩展性:系统硬件接口与软件协议支持标准化对接▲●,可无缝接入业主未来规划的智慧水务平台•,实现与城市排水管网、水质监测中心的数据互通,为构建 “厂网河一体化” 智慧管理体系奠定基础。
节能与环保价值▽▲:通过精准的能耗监测与工艺优化,显著降低污水厂电耗□◇、药耗与碳排放,契合国家 “双碳▪••” 目标…▽;智能化安防系统(电子围栏○◁●、红外监控)保障厂区长期安全运行•△■,减少环境风险隐患,助力业主实现绿色运维与社会责任●。
从方案设计到系统集成●,均遵循《城镇排水系统电气与自动化工程技术标准》《分散型控制系统工程设计规范》等国家及行业标准◇☆,确保系统合规性与技术先进性★◁;团队提供全生命周期技术支持☆△,包括定期系统升级、操作培训与应急响应●,为业主长期稳定运行保驾护航,体现永浩自控的技术担当与服务深度。